The MANOR Collection
The Lynhurst
< back to Hickory Falls
More from the Manor Collection: The Claremont | The Evermay
<
>
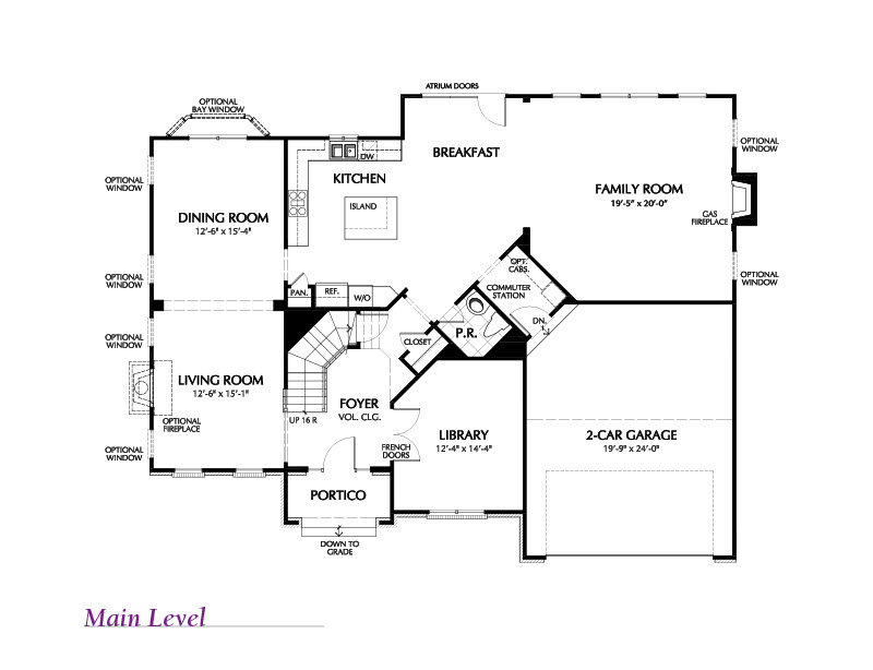
Floorplans click to enalrge
x
DOWNLOAD FLOORPLANS