The Veranda Collection
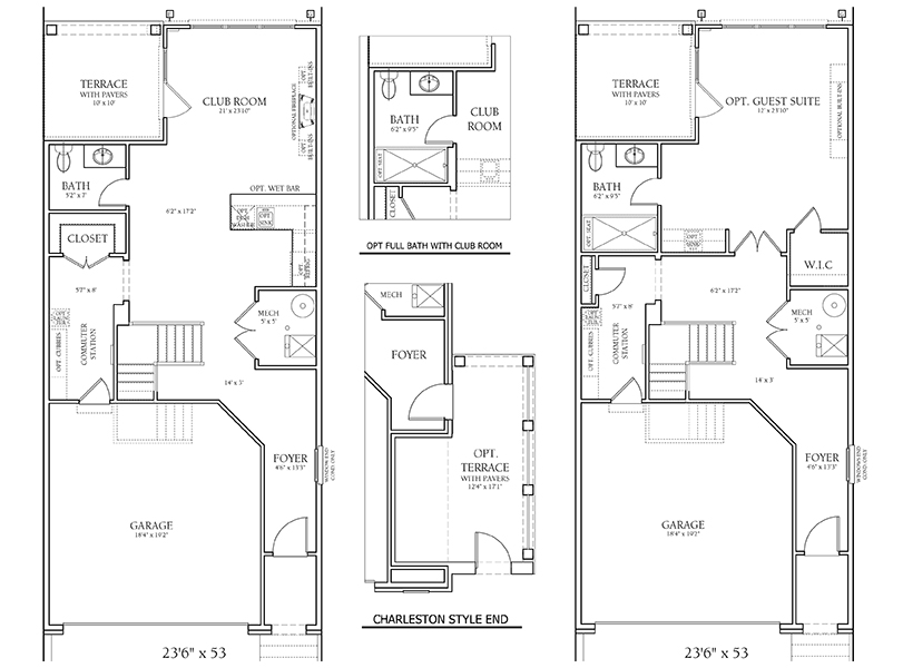
The Granville
< back to Turtle Point
More from the Veranda Collection: The Jamison | The Norbury | The Somerville | The Drayton
Floorplans click to enalrge
<
>
x
DOWNLOAD FLOORPLANS